我校建筑与艺术系在2022(第六届)广东大中专院校艺术设计手绘技能大赛中斩获佳绩

来源: 广东华夏高级技工学校-建筑与艺术系

时间: 2022-06-27 17:15


 

 

以赛促教强内涵,勤学苦练显风采——我校建筑与艺术系在2022(第六届)广东大中专院校艺术设计手绘技能大赛中斩获佳绩

 

近日,由广东省工业工会委员会、广东省创意设计产业研究会主办的2022(第六届)广东大中专院校艺术设计手绘技能大赛落下帷幕。本次比赛有100多家院校参加,学生作品3362件,由评委会专家进行公平、公正、公开的评审,经过激烈角逐,我校荣获中职组优秀组织奖,建筑与艺术系室内设计专业学生4人荣获一等奖,6人荣获二等奖,9人荣获三等奖,指导教师陈学琼、李威荣获“优秀指导教师”。

 

 

 

 

 

学生获奖名单

 

学生备赛过程

 

获奖作品展示

 

一等奖

3.郭杰《冬奥会展厅设计》-2
3.郭杰《冬奥会展厅设计》-1

       《冬奥会展厅设计》郭杰

 

       
 
11.郑瀚翔《中国航天展馆设计》-1
 
11.郑瀚翔《中国航天展馆设计》-2
     


《中国航天.航天展馆设计》郑瀚翔

 

 

       
 
15.陈子灵《留恋莲忘返》-2
 
21.黄芊芊《易安茶馆》
     

《流莲忘返》陈子灵
 

15.陈子灵《留恋莲忘返》-1

    《易安茶馆》黄芊芊

 

二等奖 

       
 
1.陈维涛《发-潮品餐饮店》-1
 
1.陈维涛《发-潮品餐饮店》-2
     


《发潮品餐饮店》陈维涛

  

2.孔德顺《樱雨竹轩茶室设计》-1

   

2.孔德顺《樱雨竹轩茶室设计》-2

《樱雨竹轩茶室设计》孔德顺

   
 
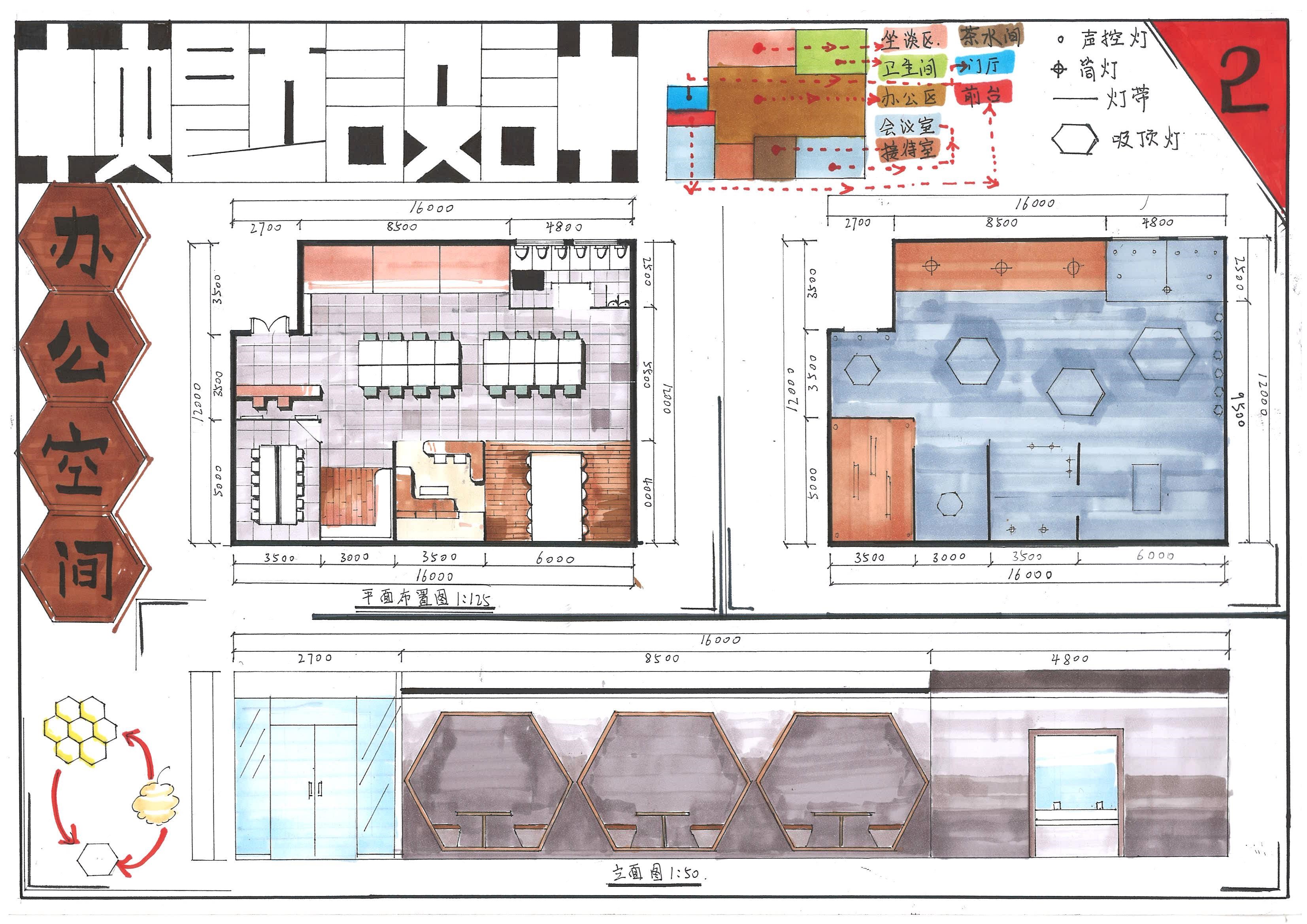
17.杨惠晶《办公空间设计》-1


 

17.杨惠晶《办公空间设计》-2
《办公空间设计》杨惠晶

 

20.魏天雪《余辉设计》

《余辉设计》魏天雪

 

24.李林妮《冬奥会主题展厅设计》-1

      

24.李林妮《冬奥会主题展厅设计》-2

《冬奥会展厅设计》李林妮

  

23.蒋晓榕《冬奥会吉祥物展厅》-1

     

23.蒋晓榕《冬奥会吉祥物展厅》-2

《冬奥会吉祥物展厅》蒋晓榕

 

三等奖

6.郭思慧《童话世界》
《童话世界》郭思慧

     

12.庄天娟《轻奢雅居客厅设计》
                《轻奢雅居客厅设计》庄天娟

.    

13.·彭静星《十里红绸-餐饮空间设计》
《十里红绸-餐饮空间设计》彭静星

 

         
     
5.何俊整《原树咖啡》-1
 
       

  

   
 
5.何俊整《原树咖啡》-2

            《原树咖啡》何俊整 

       
 
14.谢金燃《日拾》-1
 
14.谢金燃《日拾》-2
     

《日拾》谢金燃

8.李通《霓虹餐厅设计》-2


 

8.李通《霓虹餐厅设计》-1

《霓虹餐厅设计》李通
      

16.吴森锐《办公室空间快题设计》

吴森锐《办公室空间快题设计》

 

22.梁婧《遇见静夜》

梁婧《遇见静夜》     

 

指导教师

IMG_6833

     

陈学琼老师:毕业于华南师范大学,室内装饰设计员高级,从事教育工作6年,现任室内设计专业教师兼班主任。在工作中一步一个脚印,踏踏实实,兢兢业业,努力提高专业能力和教学业务能力,秉承着越努力越幸运的工作态度,任职期间荣获各类国、省、校级荣誉。

lADPJxf-xvb85ZvNBQDNA1Y_854_1280

李威老师:毕业于广东东软学院,室内装饰设计员高级,从事教育工作4年,现任室内设计专业教师兼班主任;任职期间荣获各类省、校级荣誉;参与校级一体课程改革、专业建设相关工作、教育理念:知行合一,以身作则,技能点亮人生。

此次比赛不仅充分展现出我校师生精湛的专业水平和奋发向上的精神面貌,并通过与其他院校同台竞技互相学习,进一步提升我校师生的专业素养和实践能力。今后,我校将进一步拓宽师生参赛实践的平台与机会,切实助力青年教师与学子成长成才,展示风采,助推我校专业建设。

 

                                   建筑与艺术系

                                  2022-7-1

 

 

 

 

 

 

扫描二维码 分享本页